MOULINS LES METZ : Maison familiale ou 3 appartements avec extérieurs et stationnements

Prix : 399000 €

MOULINS LES METZ : Maison familiale ou 3 appartements avec extérieurs et stationnements

Prix : 399000 €

Description du bien

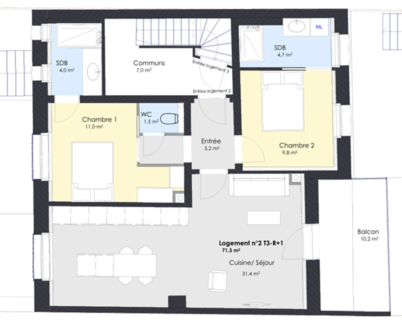
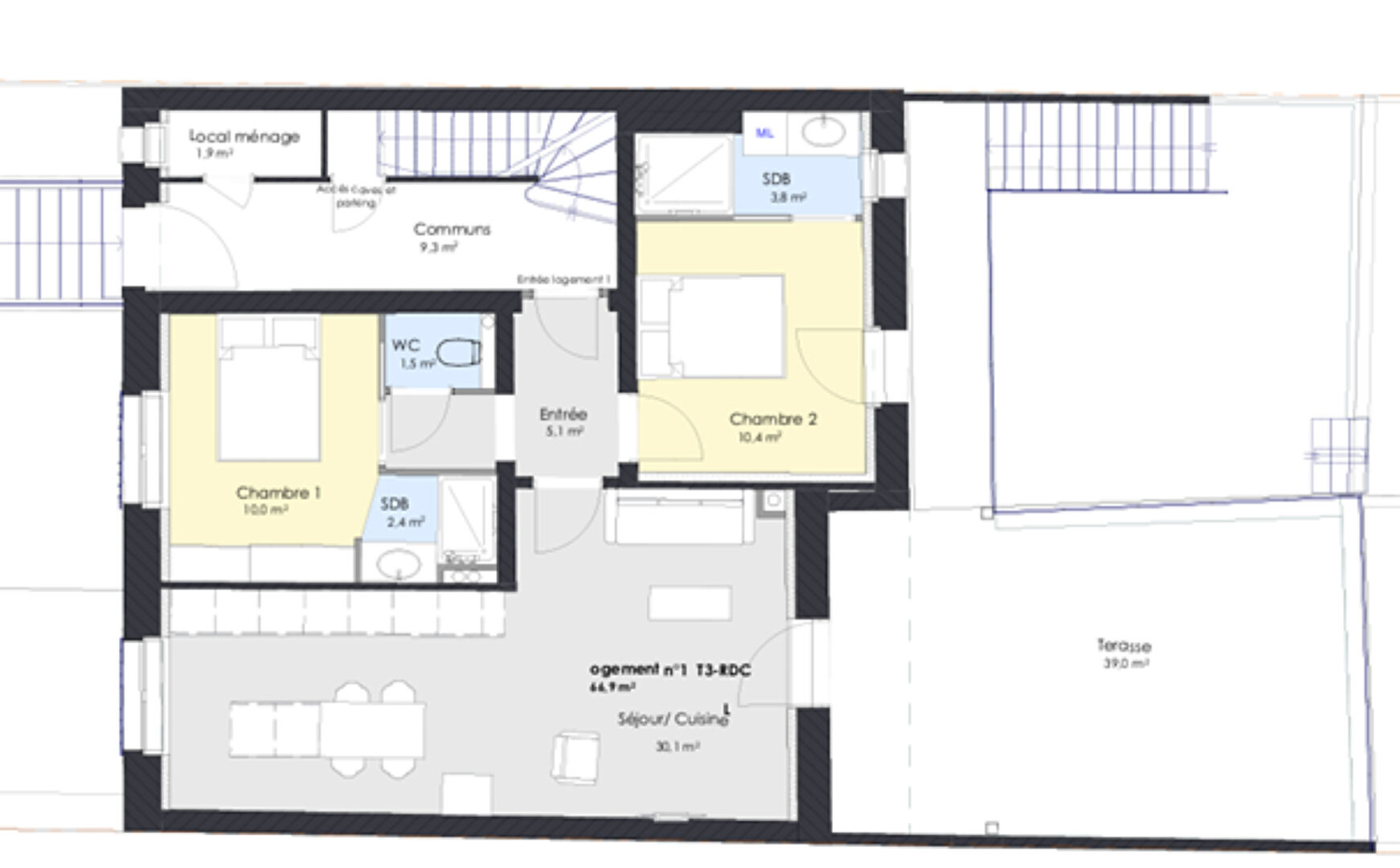
MOULINS-LÈS-METZ ? GRANDE MAISON DE CARACTÈRE A RÉNOVER / INVESTISSEMENT IDÉAL ! Découvrez cette belle demeure des années 40, pleine de charme et de potentiel, située dans un secteur calme et recherché de Moulins-lès-Metz. Édifiée sur un terrain clos et arboré de 748 m², elle développe 210 m² habitables (298 m² au sol) sur sous-sol complet. Deux projets possibles selon vos envies : Version familiale : Transformez cette maison en une grande habitation avec 5 à 6 chambres, de vastes espaces de vie, et profitez d'un jardin et de terrasses pour toute la famille. Version investissement : Le bien est vendu avec un permis validé pour la création de 3 appartements de type T3, chacun avec : un extérieur privatif (terrasse ou jardin) une cave individuelle et 3 places de stationnement Le projet inclut également la mise en copropriété, la rénovation extérieure complète (façades et menuiseries), ainsi que la création des stationnements. Un bien rare, offrant un fort potentiel de valorisation aussi bien pour un investisseur que pour une famille souhaitant rénover à son goût ! Les + : Quartier résidentiel prisé Grands volumes Terrain clos et arboré Projet de rénovation déjà validé DPE : D ? Renseignements en agence Thé ou Café Immobilier au 03 74 95 10 92 ? www.theoucafeimmobilier.com

Surface : 210 m2

Nombre de pièces : 9

Chambres : 6

Etages : 3

Ville : MOULINS LES METZ 57160

Pays : FRANCE

Date mise en ligne : 08/09/2025

Date mis à jour : 12/10/2025

Année de construction 1940

Nombre de salle de bain 2

Nombre de WC 2

Cuisine Amenagée

Mitoyen 2 côtés

Code annonce : 59150139

Frais : Honoraires à la charge du vendeur

L'agence Thé ou Café

Agence de Longeville-lès-Metz :
Siège social
71 rue Robert Schuman
57050 Longeville lès Metz
France
Agence de Thionville :
Accueil uniquement sur rendez-vous
5 Place au Bois
57100 Thionville
France

399000